Skip To Content

909 SE 21st Street

Bentonville, AR 72712
  • $14
  • STATUS: Closed
  • ON SITE: 246 Days
  • MLS #: 1313408
Sold - 09/26/2025
$14
SOLD - 09/26/2025
  • 0
    BEDS
  • 0.51
    ACRES
  • 0
    BATHS
  • 0
    1/2 BATHS
  • 5,000
    SQFT
  • $0
    $/SQFT
Type:
Commercial-Lease
Built:
2005
County:
Area:

School Ratings & Info

Description

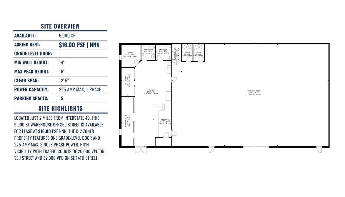
Available: 5,000 SF. Asking rent: $16.00 PSF | NNN. Grade level door: 1. Min wall height: 14'. Max peak height: 16'. Clear span: 12' 6". Power capacity: 225 amp max, 1-phase. Parking spaces: 15. Site highlights Located just 2 miles from Interstate 49, this 5,000 SF warehouse off SE J Street is available for lease at $16.00 PSF NNN. The C-2 zoned property features one grade-level door and 225-amp max, single-phase power. High visibility with traffic counts of 20,000 VPD on SE J Street and 32,000 VPD on SE 14th Street.



© 2026 Northwest Arkansas Board of Realtors, Inc. All rights reserved. IDX information is provided exclusively for consumers' personal, non-commercial use and may not be used for any purpose other than to identify prospective properties consumers may be interested in purchasing. Information is deemed reliable but is not guaranteed accurate by the MLS or Equity Partners Realty. Data last updated: 2026-03-06T00:26:22.1.
www.martinmckeenwa.com/homes/165489507
Print Image

909 SE 21st Street Bentonville, AR 72712

  • Price: $6,666
  • Status: Closed
  • On Site: 246 Days
  • Updated: 200 min ago
  • MLS #: 1313408
0
Beds
0
Baths
0
½ Baths
0.51
Acres
5,000
SQFT
$0
$/SQFT
2005
Built
Neighborhood:
Tri City Park Ph 1 Bentonville
County:
Benton
Area:
Benton
Property Description
Available: 5,000 SF. Asking rent: $16.00 PSF | NNN. Grade level door: 1. Min wall height: 14'. Max peak height: 16'. Clear span: 12' 6". Power capacity: 225 amp max, 1-phase. Parking spaces: 15. Site highlights Located just 2 miles from Interstate 49, this 5,000 SF warehouse off SE J Street is available for lease at $16.00 PSF NNN. The C-2 zoned property features one grade-level door and 225-amp max, single-phase power. High visibility with traffic counts of 20,000 VPD on SE J Street and 32,000 VPD on SE 14th Street.
Exterior Features

Lot Features Industrial Park

Property Features

Availability Date 2025-07-02 Business Type Retail Current Use Office Warehouse Possible Use Automotive Manufacturing Office Warehouse Property Sub Type Warehouse Special Listing Conditions None Tax Annual Amount 4695 Year Built Details Resale (less than 25 years old)

Listing provided by Focus Commercial Real Estate: 479-254-7000.


© 2026 Northwest Arkansas Board of Realtors, Inc. All rights reserved. IDX information is provided exclusively for consumers' personal, non-commercial use and may not be used for any purpose other than to identify prospective properties consumers may be interested in purchasing. Information is deemed reliable but is not guaranteed accurate by the MLS or Equity Partners Realty. Data last updated: 2026-03-06T00:26:22.1.
 
https://bt-photos.global.ssl.fastly.net/arkansas/orig_boomver_1_1313408-2.jpg https://bt-photos.global.ssl.fastly.net/arkansas/orig_boomver_1_1313408-2.jpg https://bt-photos.global.ssl.fastly.net/arkansas/orig_boomver_1_1313408-2.jpg
Logo
Equity Partners Realty
710 W Emma Ave
Springdale AK, 72764